目录:
天花回光槽天花灯管购买建议橱柜灯管橱柜灯管的购买建议浴帘盒灯管
不是随意买条灯管能够实现浪漫的线性灯具,不同安装方法,落地疗效大相径庭,不要让我们的心血击败了暴力施工。此文内容主要述说灯管的安装方法与应用。
在家具灯具中,回光槽的几个区域大致有:天花、鞋柜、边柜、岛台、窗帘盒、踢脚线。下边将列出最容易出现的问题与解决方式,避免暴力施工,无脑施工。
1、天花回光槽
在家具灯具中,天花会光槽是应用最多的场景,常见的有洗墙与洗天花两种形式。
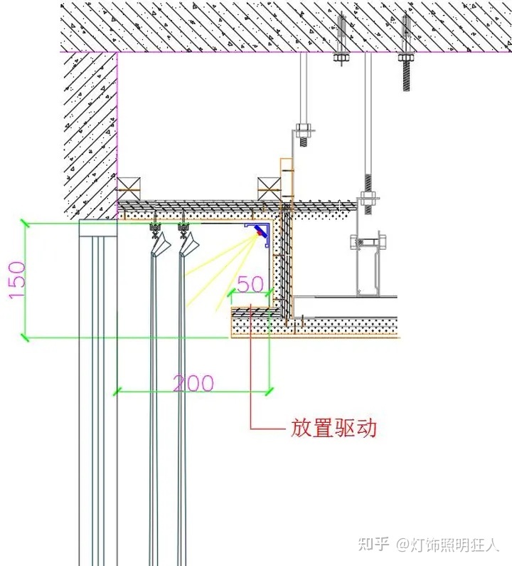
➊出光不规则,锯齿光严重

图源:家具灯具狂人自制
成因:暴力施工,灯管安装不平整,随便丢在灯槽内。
解决办法:订购灯管卡槽,给灯管定型。
直线安装▼

拐角处理▼

➋天花截至光
光出不来,截至光明显。过于不自然,截至光明显。

魔鬼画风|家具灯具狂人

成因1:

魔鬼画风|家具灯具狂人
成因2:

魔鬼画风|家具灯具狂人
解决1:

魔鬼画风|家具灯具狂人
安装特点:1.那样装灯管出光疗效显著,没有截光线存在,光线过于自然。
2.灯管便于固定,施工简略。
3.条件容许下,可使用带视角调节托架,疗效会格外显著。

4.相比直接扔在回光槽里,更有打扫条理智。
➌洗墙截至光

魔鬼画风|家具灯具狂人
成因1:

魔鬼画风|家具灯具狂人
成因2:

魔鬼画风|家具灯具狂人
解决:

魔鬼画风|家具灯具狂人
面对迥然不同的灯管安装位置,虽然会有男子伴会发出疑虑。

那样的安装位置,会不会有射灯外露的状况?
正常状况下,人不会贴着墙面向下看的。
假如外墙为石材等反射能力较强的材质,可添加透光板处理,使光线轻柔扩散去。
2、天花灯管购买建议
假如要求不高,天花上选择高压灯管即可,居家灯具最常用的灯管之一,尺寸规格诸多。

光源规格:2835、5730、5050、3030.......
光色:单色、双色、RGB........
型号:单排、双排、斜三排,48灯、60灯、96灯、120灯........
特点:
选择面广:尺寸规格十分多,色温、功能自由选择,功率范围大致在5-10W。
价钱实惠:从杂牌到品牌,售价区间基本在¥3-20+/M不等,配件价钱基本也在¥2-20左右
劣势:
实用场景:
功率建议:客饭店灯公共区域建议10W左右,房间建议6W左右
订购建议:
假如要求不高,可以选择雷士、欧普的流通款,售价经济便宜,价钱一般在¥10左右/米。
假如更在意稳定性,可以选择飞利浦的射灯ps做led灯带灯光效果,(飞利浦的灯管灯管宽度都比较大,36灯-60灯/米,更适宜于装暗槽,假若暗槽半径过小或许会有「颗粒感」光斑)。
还要智能控制的建议选择泛影射灯,
T5托架
T5托架是基础灯具的神器,色温足够,出光均匀,以便修理维护,更适用于客饭店卧室灯还要高色温的场所,应为照度比较高,厨房慎用。
目前的T5基本是一体化托架,一般有两线与3线之分。

尺寸一般有:0.3M、0.6M、0.9M、1M、1.2M五种型号。
可实现无缝条纹,(照明宽度与灯槽宽度相差10厘米以内基本不会影响光效)并配有软头,以适应更多的使用场景。
功率:1.2M一般为14W左右。
特点:

劣势:
只好直线安装,圆形不能胜任。
居家环境不宜用T5做气氛灯具,色温太高,不建议大面积使用。
照明建议:
三雄极光丽致托架性价比比较高
决算稍高的可以选择飞利浦,非常结实耐造
2、柜体灯管的安装与利用
➊溢出的余光

魔鬼画风|家具灯具狂人
不说这些方法的好与赖,假如只希望被照的区域亮,这也许不太合适,假如希望能适当的补充空间色温,这只是可取的。
假如但开这组光,你瓷砖上的尘土会一览无余,要保证家里的整洁哦。
出光模式如图:

魔鬼画风|家具灯具狂人
这些方法常用在衣柜的最上层隔间,电视柜的最上层蕾丝,右图的出光则不会有很多的光线溢出。

魔鬼画风|家具灯具狂人
一般伴随的问题就是瓷砖上会有射灯的影子。这主要取决于橱柜的材质。
➋瓷砖上的灯管影子

图源:家具灯具狂人自制
解决1:可以用小挡板遮住射灯,以免影子倒在地砖上。要达如何的疗效就选择相应的安装方法。

魔鬼画风|家具灯具狂人
解决2:有条件的可以使用透光扩散板。


魔鬼画风|家具灯具狂人
解决3:非反光瓷砖不用做任何处理,假如有挂毯,让光线落在挂毯上也可完美解决问题。
➌可直视光源

魔鬼画风|家具灯具狂人
解决1:斜发光,还要加铝材

魔鬼画风|家具灯具狂人
解决2:后出光

魔鬼画风|家具灯具狂人
➍岛台或书柜:

魔鬼画风|家具灯具狂人
➎桌子灯光太亮
在居家灯具中,门扇主要是做气氛灯具,假如色温偏低,就丧失了气氛的意义,也有点主次不分的发觉,因为空间光线对比度的成因,高亮的柜感受让其他空间变得不够亮。

魔鬼画风|家具灯具狂人
解决:用低色温灯光,按照室外的环境照度来定,一般是3-6W/M的灯管
4、低压灯管选择建议
橱柜、床头等易接触的地方建议使用安全电流的射灯,一般是12V/24V的射灯,还要搭载恒压电源适配器。

继电器电源

继电器电源的功率选择,总功率=额定电流*额定电压*0.7-0.8,
比如:某场所使用12V的10米射灯,每瓦的功率是10W,这么灯管的总功率是100W,
驱动电源的功率建议选择12V,10A,120W。尽量不要让驱动满负荷营运,即便驱动电源的实际功率就会比额定功率略小。
低压灯管的特点:
劣势:
报价过高,单条灯管过长容易形成压降,也就是距离电源越远,色温越低,(5M内一般无此问题)可通过双端电业来解决此问题。
在有水渍的地方建议选择有滴胶的防水射灯,其实继电器电源也须要防水的才行。

软灯管自带背胶可直接黏贴于表面干净的薄板面,石膏造薄板型类的不建议用软射灯,售价死贵,还得配合铝材腰线使用,费用更高。
订购建议:
飞利浦的软灯管除了耐用,光源的色调饱和度也不错,但同样的问题是灯管的宽度比较大,更适用于灯管与受光面距离较远的场景。
飞利浦低压射灯,选择面广比较广,从每米280lm-,可满足大部份场合的使用。
假如在意显色指数,可以选择西顿,参数就不用打字了,直接上图更直观

有6W-10w/米可以选择,有胶条款、裸条款、防水款、背胶款可选,可适应不同的使用场景。
低色温的适宜于橱柜、卧室等,9-10W的建议适于天花回光槽。
假如想用智能灯管做气氛灯,建议选择价比高的智能彩光灯管。用官方的话说,「心情是何种色调,灯光就是何种色调」

除了可以做居家的气氛灯具,更是游戏竞技、观影爱好者的福音,灯光可随游戏、音影的场景变化而手动适应,融入感更强,更是小情侣的房间神器,甜蜜方式哦。
另外也有飞利浦的HUE,作为气氛灯光,但是疗效不错,但着实缺乏了些性价比。喜欢的可以自己去搜。
这些橱柜射灯都需改装铝材,
线性灯看似是低压灯管的特殊运用版,主要是把低压灯管贴在带亚克力扩散板的铝槽旁边,以适应跟多的使用场景ps做led灯带灯光效果,在灯管的选择上,可参考低压灯管。

铝铝材的型号机型诸多,可以嵌入式安装,可以明装,能适应更多的场景,诸如嵌入外墙,嵌入瓷砖、嵌入走道.....
订购建议:
铝槽可选购杂牌,但光源的选择尽量选择可靠的大牌。
➒浴帘盒:
出光没有对于错,按照个人喜好选择。假如要洗布帘建议这些模式。

假如只布帘盒的底部有光,就用右图这些。

相关内容:
Copyright © 2010-2022 RUHOO.CN 儒虎广告 版权所有 滇ICP备16003948号 备案号:滇ICP备16003948号